Das Holzhaus Juno besticht durch Geräumigkeit, Funktionalität und ein zeitloses Design. Dieser Entwurf ist perfekt für große Familien mit Sinn für Exklusivität.
An das klassische Gebäude mit Giebeldach schließt sich ein niedriger Flachdach-Carport mit einer Abstellkammer an, der gleichfalls die Eingangstür überdacht. Das mittige Wohnzimmer, das sich über beide Etagen erstreckt, wird von großen Glasfronten erhellt, die dem Blockhaus einen modernen Charakterzug verleihen.
Hinter der Eingangstür befindet sich eine Treppenhalle, durch die man entweder in die Küche oder in das Wohnzimmer gelangt. Vom Wohnzimmer aus können die hintere Terrasse sowie das abgeschieden liegende Bürozimmer betreten werden. Im Erdgeschoss befinden sich außerdem noch eine Sauna mit geräumigen Waschraum und eine Toilette.
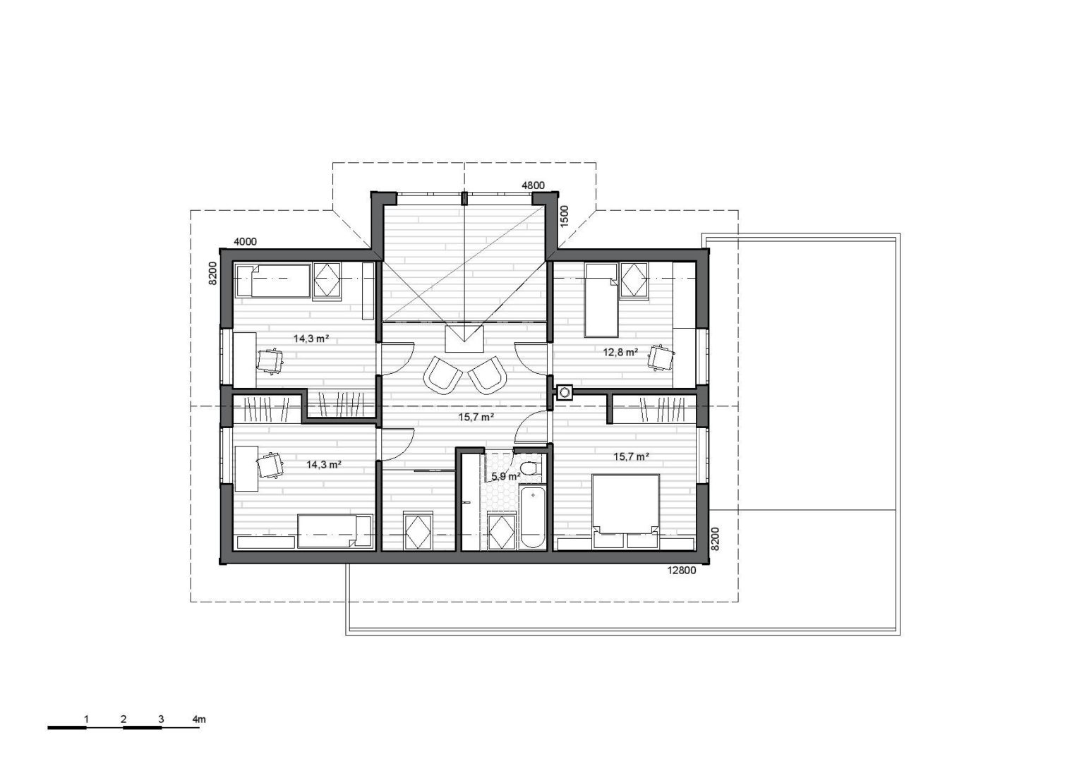
Der offene Loungebereich im Dachgeschoss eröffnet einen Blick von oben in das Wohnzimmer und wird durch die Glasfront mit ausreichend Tageslicht versorgt. Von ihm aus gelangt man in das obere Bad und vier weitere Schlafzimmer.































































































































































































































































































































































































































































































































































