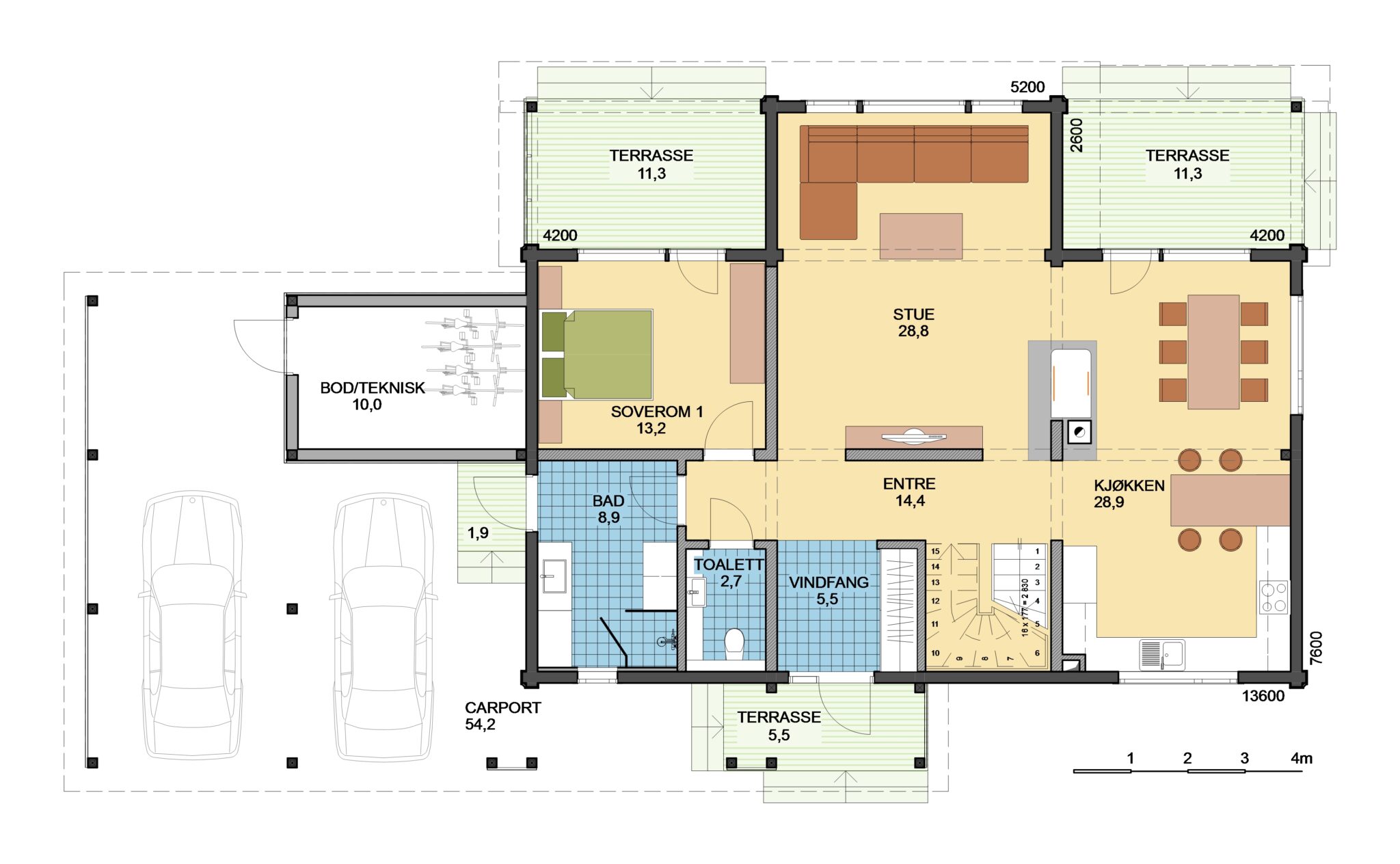
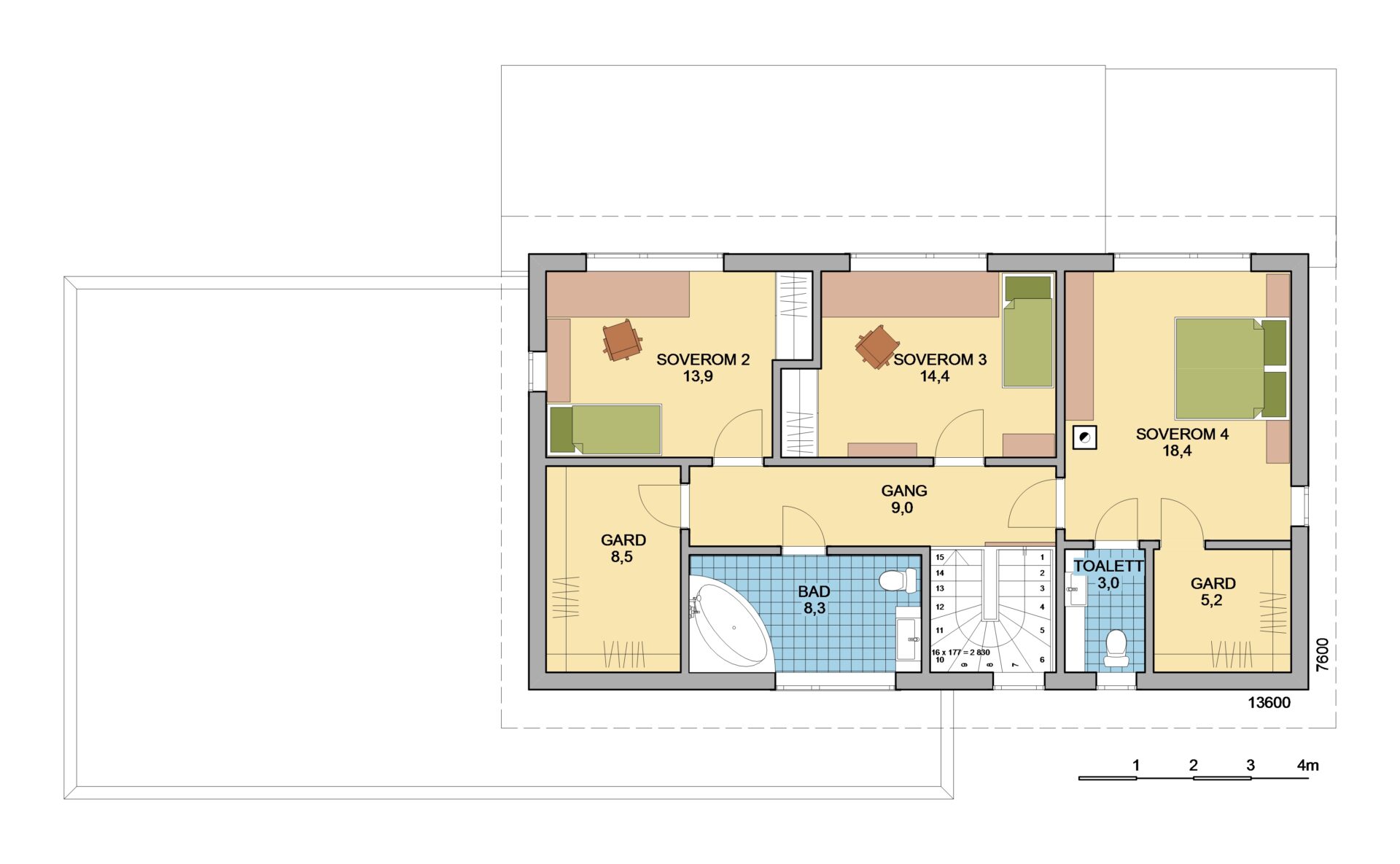
Eleos ist ein Wohngebäude, das speziell für die Bedürfnisse eines Vorstadtmilieus konzipiert wurde. Die Architektur besticht durch klare Linien und fügt sich mit minimalen Anpassungen harmonisch in verschiedene Umgebungen ein. Der Grundriss ist funktional und fließend. Alle großen Fenster in den Wohnbereichen beider Etagen öffnen sich zur ruhigeren Seite des Gebäudes, während die Längsseite zur Straße hin für die Hauswirtschaftsräume genutzt wird.
Das Projekt lässt sich als Blockhaus oder als CLT-Haus realisieren. Jedes Projekt wird individuell an die Bedürfnisse Ihrer Familie angepasst, inklusive Grundrissen und Wohnfläche.





























