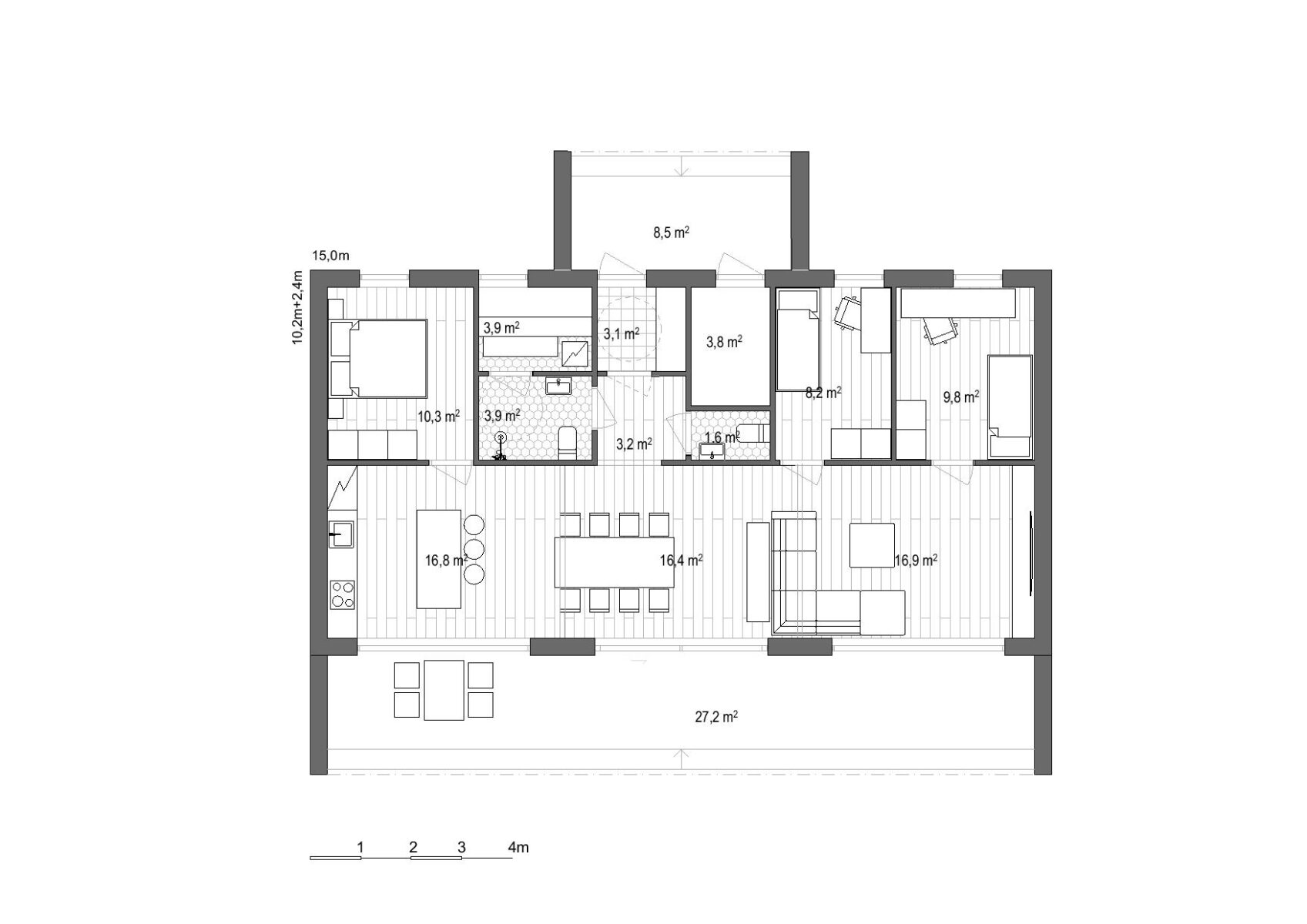
Eleguas Designziel war es, in einem kompakten Blockhaus einen möglichst kompakten und gleichzeitig geräumigen Wohnraum zu schaffen, wodurch das Gebäude deutlich größer wirkt als es tatsächlich ist. Die Schlafzimmer und Wirtschaftsräume befinden sich im hinteren Teil des Hauses, während sich ein offener Wohnbereich über die gesamte Hauslänge bis zum Innenhof erstreckt. In der Außenarchitektur bilden moderne, periskopische Innenhöfe einen harmonischen Kontrast zum traditionellen Dach an beiden Seiten des Gebäudes.
Das Projekt lässt sich als Blockhaus oder als CLT-Haus realisieren. Jedes Projekt wird individuell an die Bedürfnisse Ihrer Familie angepasst, inklusive Grundrissen und Wohnfläche.











