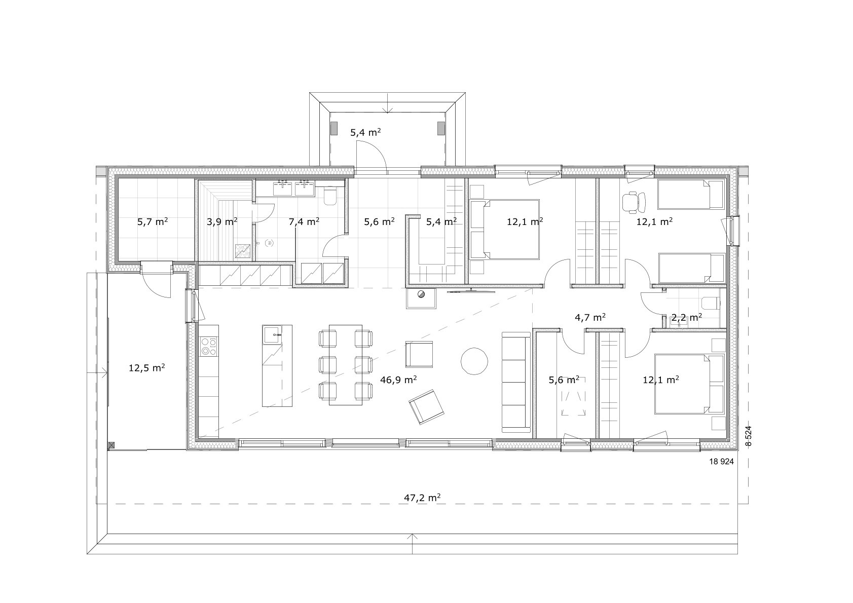
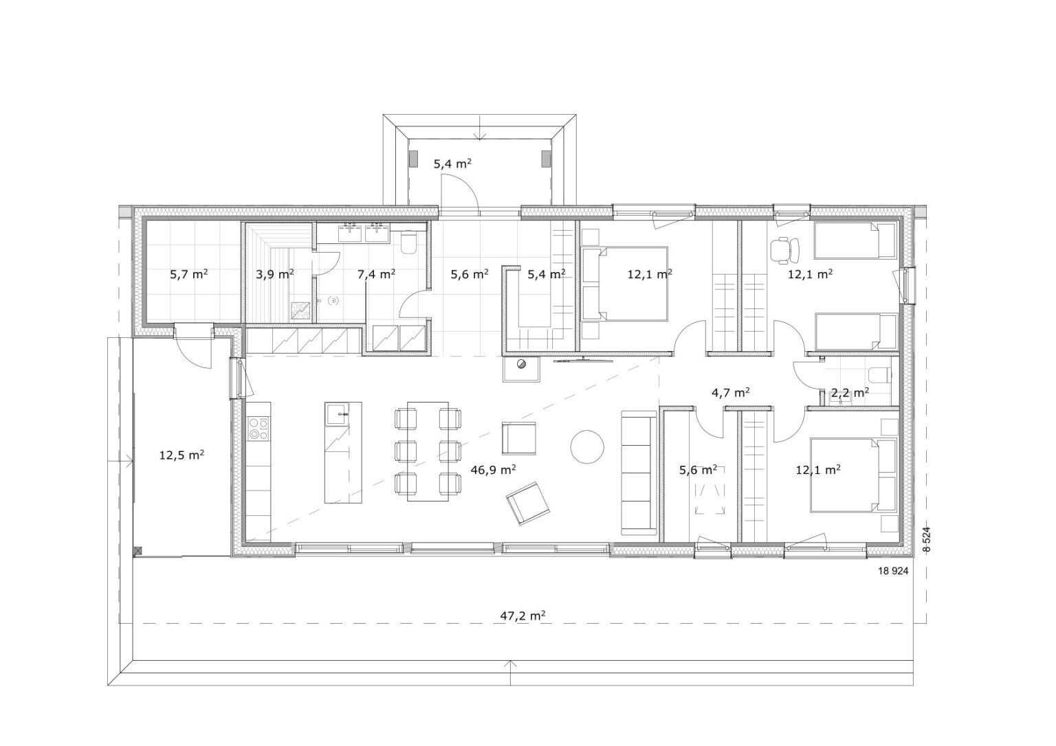
SAGA steckt voller kleiner Überraschungen. Hinter der kompakten Fassade verbergen sich ein geräumiges Wohnzimmer und drei Schlafzimmer. Das Haus bietet zudem verschiedene Stauraummöglichkeiten: Neben der Eingangstür befindet sich ein großzügiger, halboffener Kleiderschrank und neben den Schlafzimmern ein separater Abstellraum. Alles hat seinen Platz. Sollten Sie nicht so viel besitzen, können Sie den Abstellraum auch als Hauswirtschaftsraum oder kleines Homeoffice nutzen – Sie haben die Wahl. Das Haus verfügt außerdem über eine kleine Sauna und die notwendigen Sanitäranlagen. Das absolute Highlight ist die geräumige Terrasse zum Innenhof hin, die teilweise überdacht ist (und bei Bedarf verglast werden kann) und direkt von der Küche aus zugänglich ist. Genießen Sie die Natur, auch wenn es regnet oder Mücken Sie plagen. SAGA eignet sich gleichermaßen für das Stadtleben wie als Sommerhaus am Waldrand.















