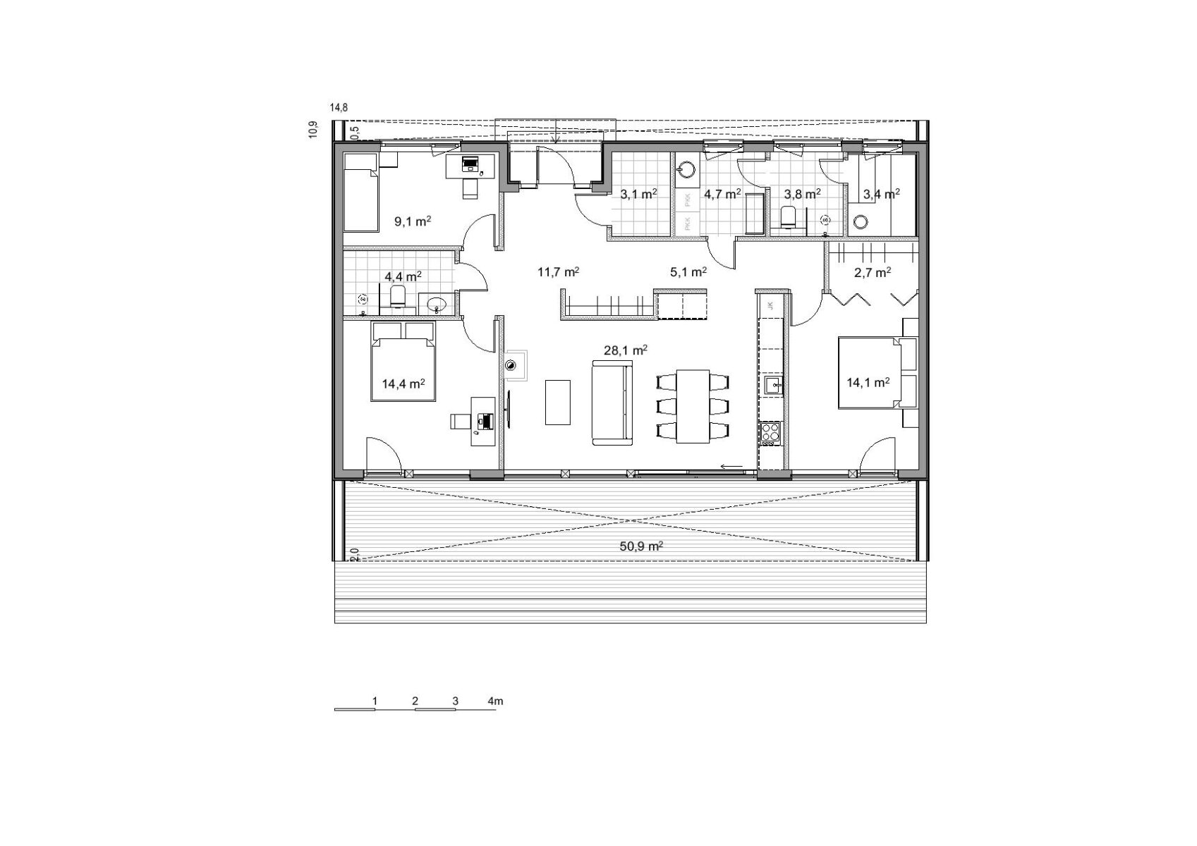
Das eingeschossige CLT-Haus Ilma ist ein geräumiges, 2,9 m hohes Wohngebäude.
Es bietet optimale Größe für eine vierköpfige Familie und verfügt über drei Schlafzimmer, zwei Hauswirtschaftsräume und zwei Badezimmer, eines davon mit Sauna.
Die Raumaufteilung berücksichtigt die Aufteilung des Hauses in verschiedene Zonen und ermöglicht einen separaten Flügel für das Elternschlafzimmer. Die Zonen sind durch einen Wohn-/Essbereich mit bodentiefen Fenstern miteinander verbunden.
Zur Hofseite hin befindet sich eine überdachte Terrasse, die an sonnigen Tagen auch als Sonnenschutz dient.
Das Projekt lässt sich als Blockhaus oder als CLT-Haus realisieren. Jedes Projekt wird individuell an die Bedürfnisse Ihrer Familie angepasst, inklusive Grundrissen und Wohnfläche













