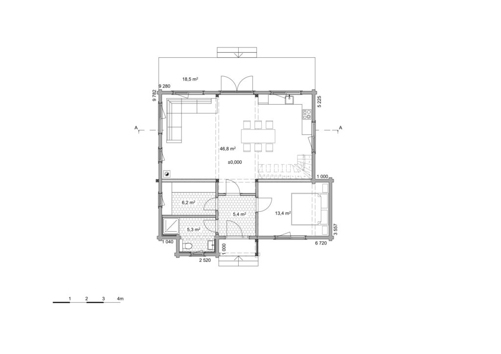
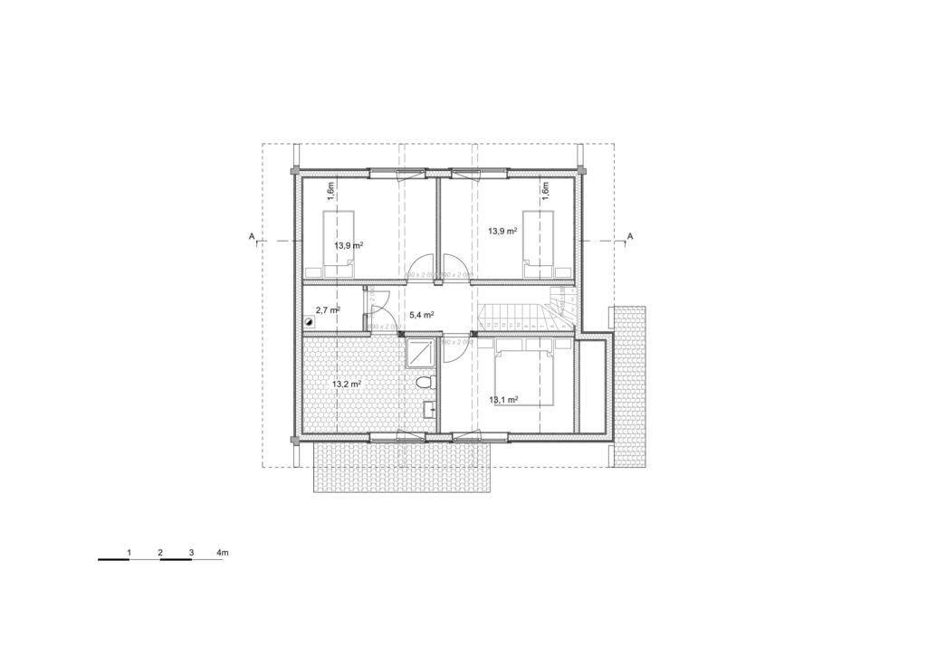
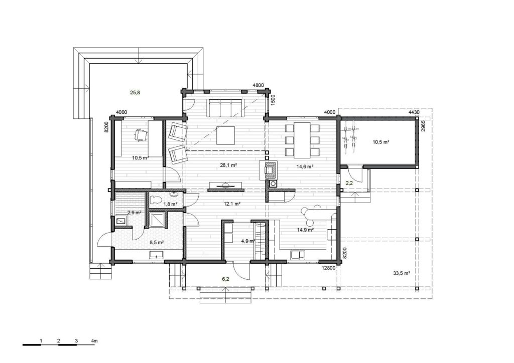
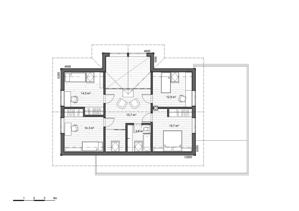
Das Holzhaus Helike ist ein ausladendes Sommerhaus für den etwas anspruchsvolleren Geschmack. Das Holzhaus umfasst alles, was man für einen tollen Urlaub braucht: ein geräumiges, durch zwei Stockwerke offenes Wohnzimmer und eine große Küche, ebenso auch eine Sauna mit Zugang zur überdachten Terrasse.
Durch die vielen Schlafzimmer stehen genug Schlafplätze zur Verfügung, wenn Familie oder Freunde zum Feiern oder zum Entspannen zu Besuch kommen.
Das Projekt kann nach eigenen Wünschen geändert werden!
Das Projekt kann entweder als verleimtes Blockhaus oder als CLT-Elementhaus gebaut werden. Jedes Projekt lässt sich individuell an die Bedürfnisse Ihrer Familie anpassen, einschließlich der Grundrisse und der Größe der Wohnfläche.
Sie sind herzlich zu einer kostenlosen Beratung bei Finnlog eingeladen!

























































































































































































































































































































































































































































































































































































































