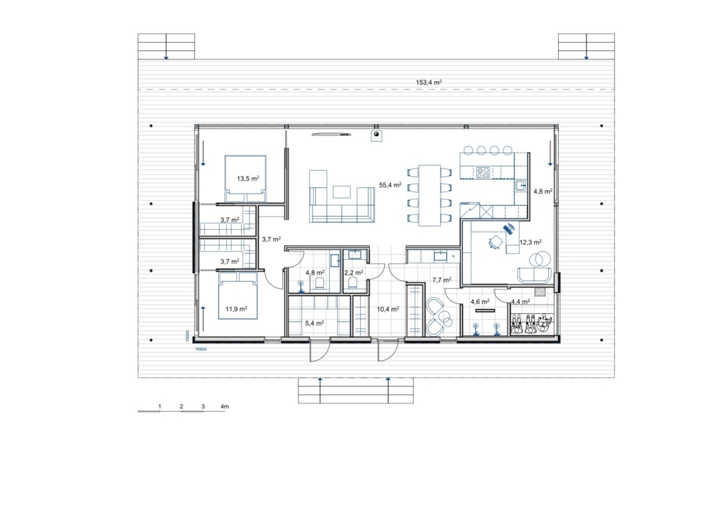
Bei der Entwicklung des Musterhauses Eirene wurden die Wünsche und Rückmeldungen der Bauherren berücksichtigt. Der Grundriss des Gebäudes ist in zwei Bereiche unterteilt: private Schlafzimmer auf der einen Seite und ein großzügiger, gemeinsamer Wohn- und Küchenbereich auf der anderen. Der Grundriss kann an die Wünsche und Bedürfnisse der Familie angepasst werden – beispielsweise kann bei Bedarf ein zusätzlicher Schlafzimmer durch eine entsprechende Verlängerung eines Gebäudeflügels ergänzt werden.
Wenn Sie neben der Sauna eine Dachterrasse wünschen, kann diese ebenfalls integriert werden.
Neben den Wohn- und Schlafräumen wurde bei der Planung des Hauses auch auf ausreichend Stauraum, Kleiderschränke und andere Aufbewahrungsmöglichkeiten geachtet, sodass alles seinen Platz hat. Ein Büro mit Blick nach vorn ist als Homeoffice vorgesehen.















