Ülgen ist ein durchdachter Gebäudekomplex, bestehend aus einem Haupthaus und einem separaten Saunahaus. Innen- und Außenbereiche gehen dank verschiedener Terrassen und einer beeindruckenden Glaswand nahezu nahtlos ineinander über.
Das Haupthaus verfügt über ein großzügiges Wohnzimmer mit offener Küche. Eine zweigeschossige Glaswand verleiht diesem Raum besondere Höhe und Lichtfülle. Alle notwendigen Funktionen wurden im Erdgeschoss eingeplant – neben dem Wohnzimmer gibt es zwei Schlafzimmer, Bäder und Ankleideräume, einen Technikraum sowie einen Hauswirtschaftsraum.
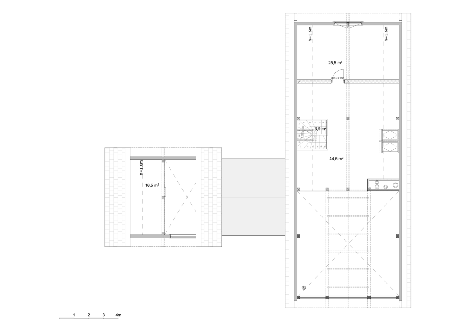
Im Obergeschoss befindet sich ein halb offener Dachbodenbereich, der zum Beispiel als Homeoffice oder Gästezimmer genutzt werden kann.
Das separate Gebäude bietet einen gemütlichen Bereich mit Umkleideraum, Waschraum und Sauna. Ein Stauraum auf dem Dachboden bietet zusätzlichen Platz für Gegenstände, die im Saunahaus aufbewahrt werden.
Die beiden Gebäudeteile sind durch einen großzügigen überdachten Bereich miteinander verbunden, der vor Wind und Regen schützt. Dadurch kann die Terrasse vom Frühjahr bis weit in den Herbst hinein genutzt werden.
Zum Komplex gehören außerdem eine überdachte Terrasse sowie eine offene Terrasse, auf der man warme Sommerabende genießen kann. Direkt neben der Küche wurde eine kleine separate Terrasse entworfen, auf der man gemütlich seinen Morgenkaffee trinken kann.
Das Projekt kann entweder als verleimtes Blockhaus oder als CLT-Elementhaus gebaut werden. Jedes Projekt lässt sich individuell an die Bedürfnisse Ihrer Familie anpassen, einschließlich der Grundrisse und der Größe der Wohnfläche.
Sie sind herzlich zu einer kostenlosen Beratung bei Finnlog eingeladen!































































































































































































































































































































































































































































































































































