Ein großzügiges Traumhaus, in dem die ganze Familie bequem Zeit miteinander verbringen kann.
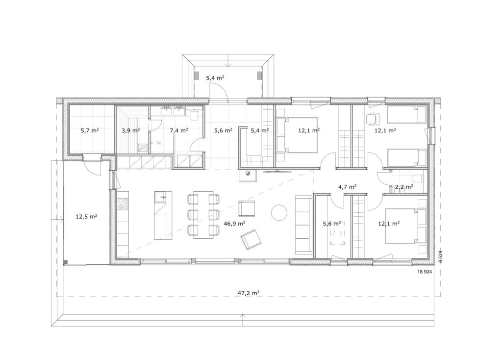
Das Nyx ist eine luxuriöse Residenz, die speziell auf die Bedürfnisse einer großen Familie abgestimmt ist. Das Herzstück des Hauses, das aus zwei Gebäudeteilen besteht, ist ein offenes, helles Wohnzimmer mit großen Glasflächen und Blick auf die Terrasse.
Auf einer Ebene sind drei Schlafzimmer geplant, jedes mit einem eigenen Badezimmer. Diese Lösung bietet jedem Familienmitglied maximalen Komfort. Darüber hinaus verfügt das Haus über ein praktisches und kompaktes Büro.
Im zweiten Gebäudeteil befindet sich ein separates Saunahaus, das neben der Sauna auch Platz für Hauswirtschaftsräume bietet. Hier finden sich zudem ein kompaktes Wohnzimmer und zwei Schlafzimmer.
Die Nutzung der Räume kann an die Wünsche der Familie angepasst werden – zum Beispiel kann eines der Schlafzimmer in ein Hobby- oder Gästezimmer umgewandelt werden. Auf Wunsch kann auch eine Küche hinzugefügt werden, wodurch dieser Teil des Gebäudes zu einer völlig unabhängigen Wohneinheit wird.
Das Projekt kann entweder als verleimtes Blockhaus oder als CLT-Elementhaus gebaut werden. Jedes Projekt lässt sich individuell an die Bedürfnisse Ihrer Familie anpassen, einschließlich der Grundrisse und der Größe der Wohnfläche.
Sie sind herzlich zu einer kostenlosen Beratung bei Finnlog eingeladen!



















