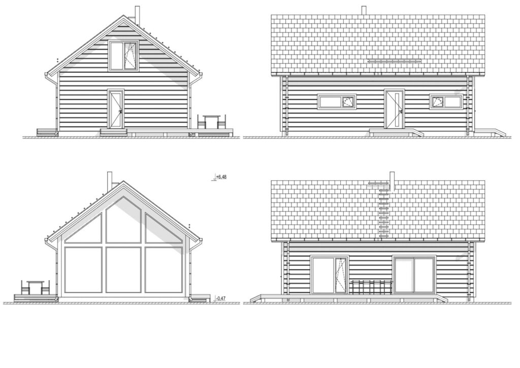
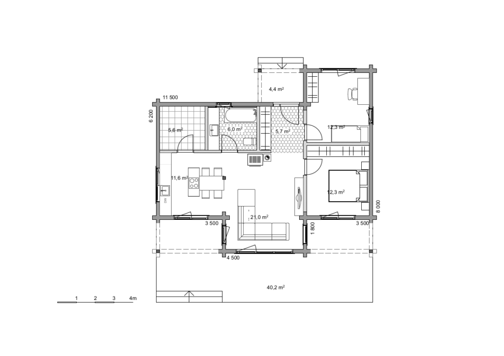
Das Holzhaus Magnolia ist ein mittelgroßes zweistöckiges Wohnhaus. Das Haus ist so ausgelegt, dass es den sich verändernden Bedürfnissen einer Familie leicht angepasst werden kann.
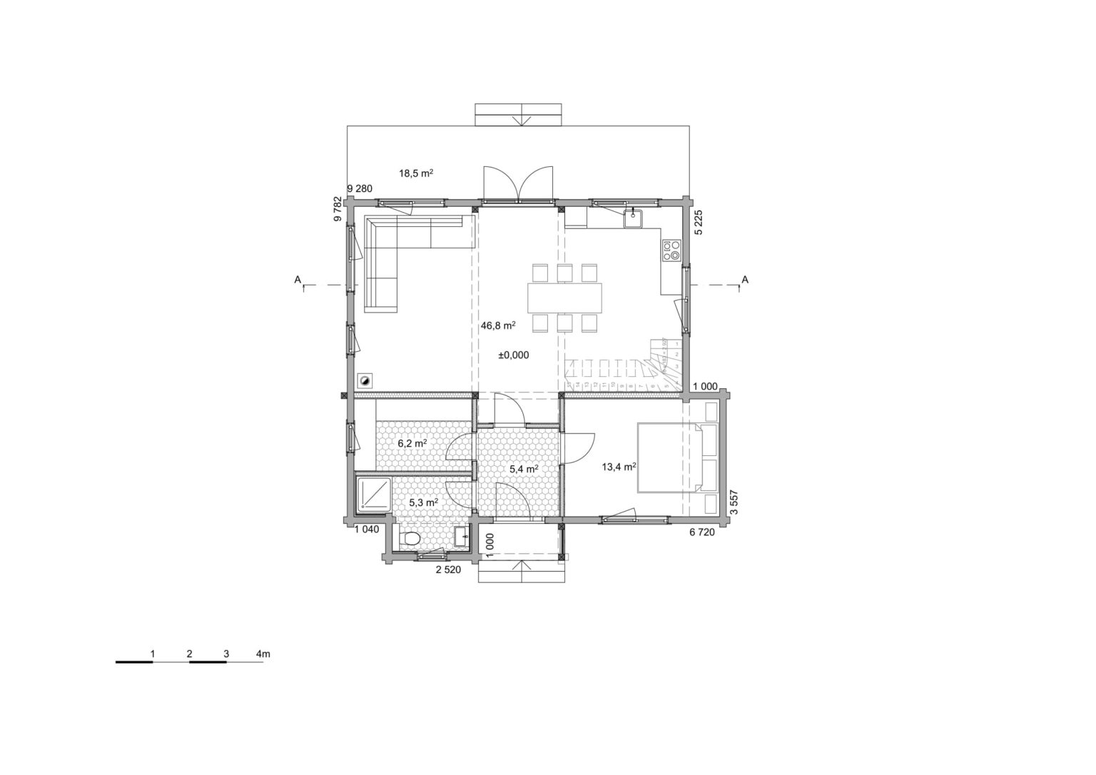
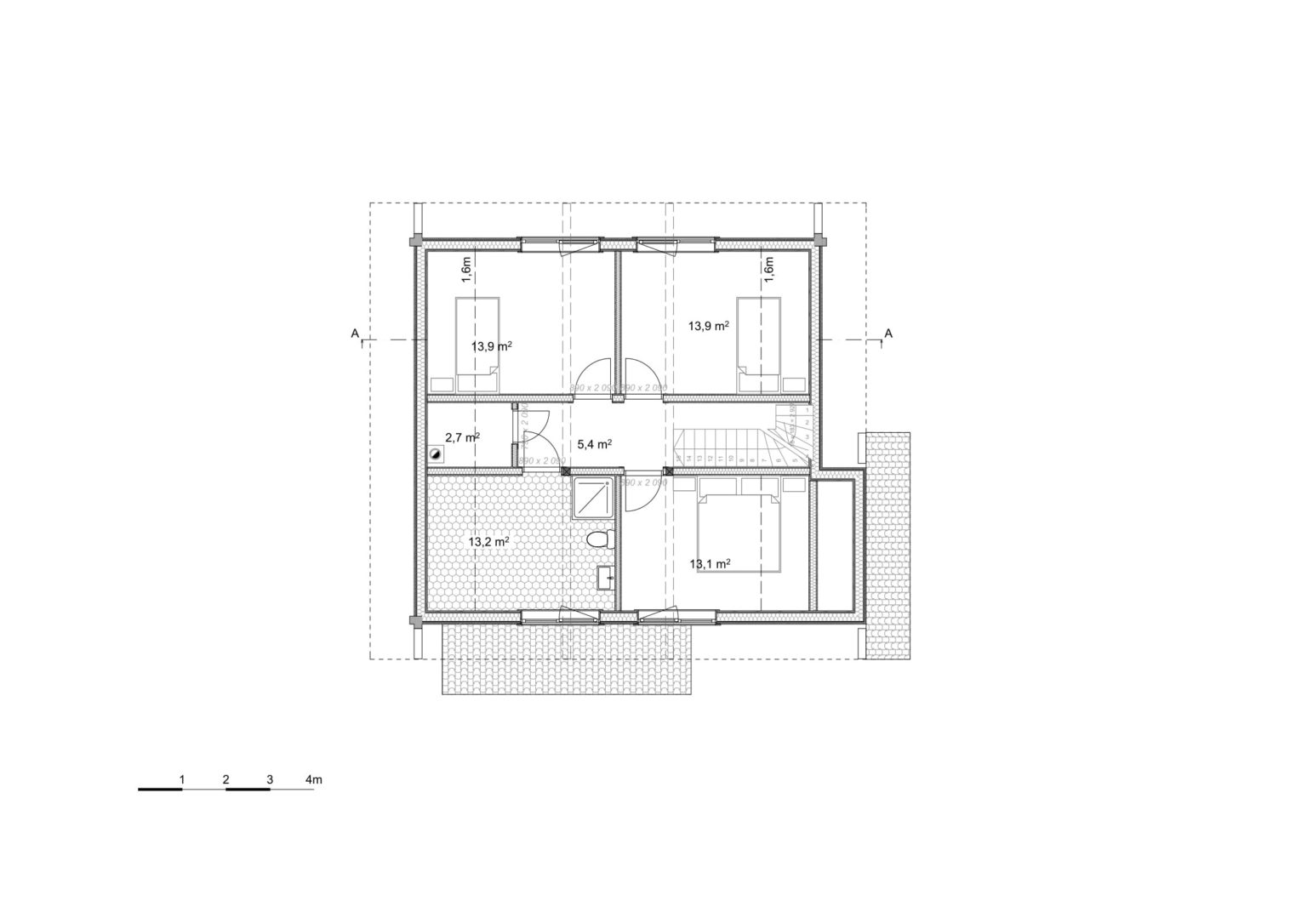
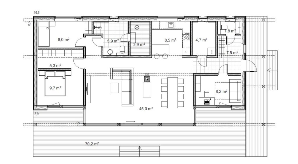
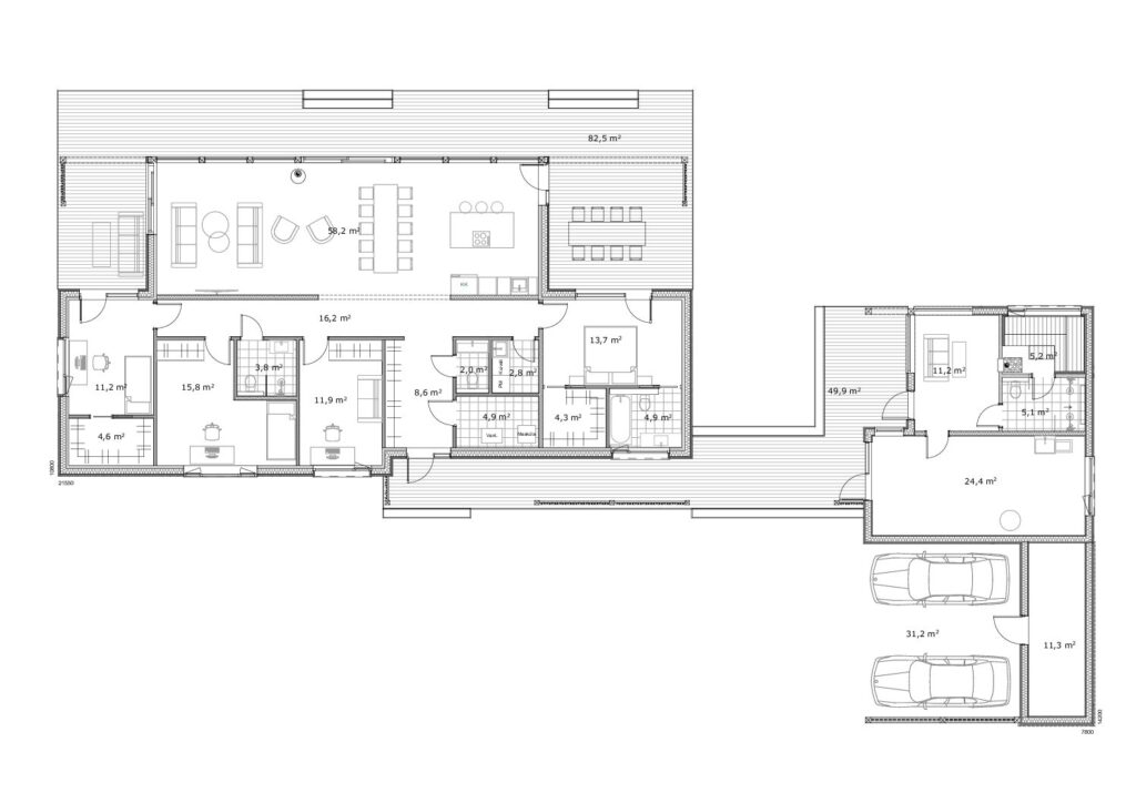
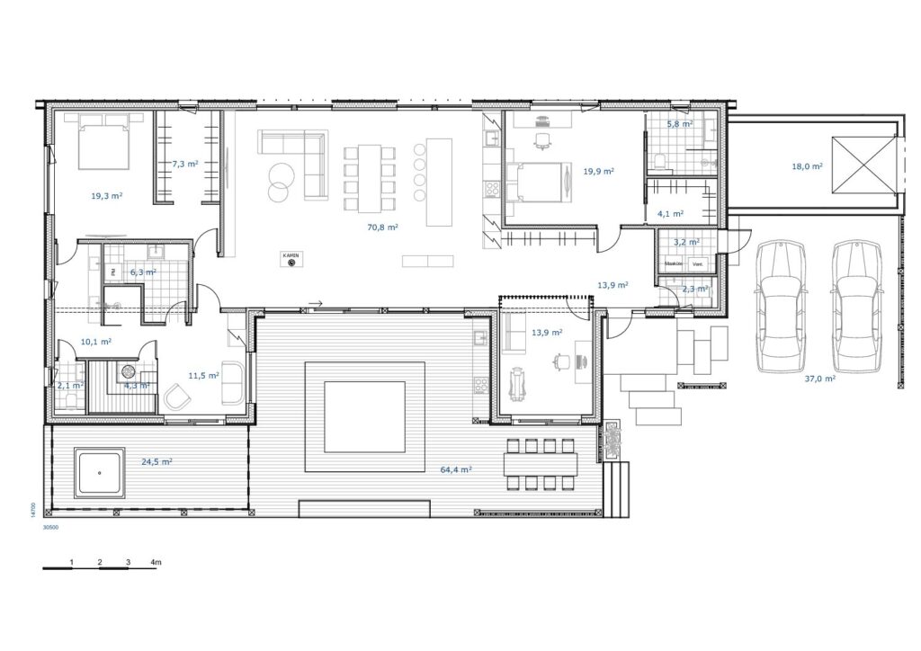
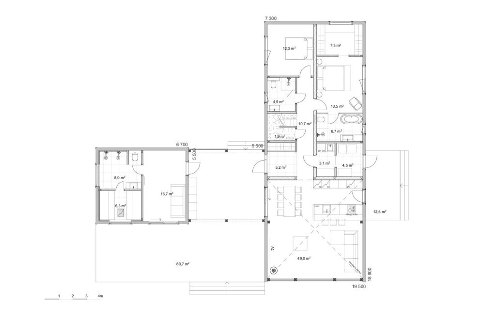
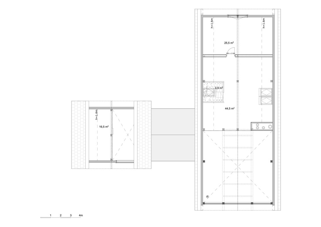
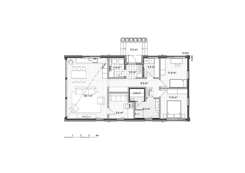
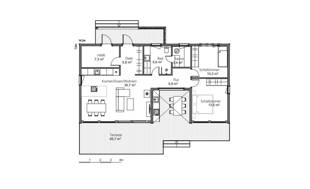
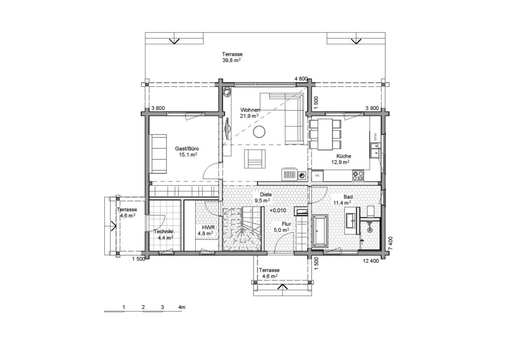
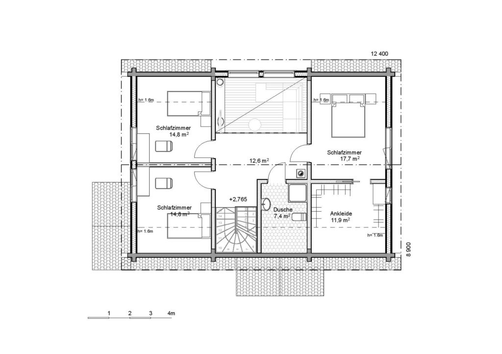
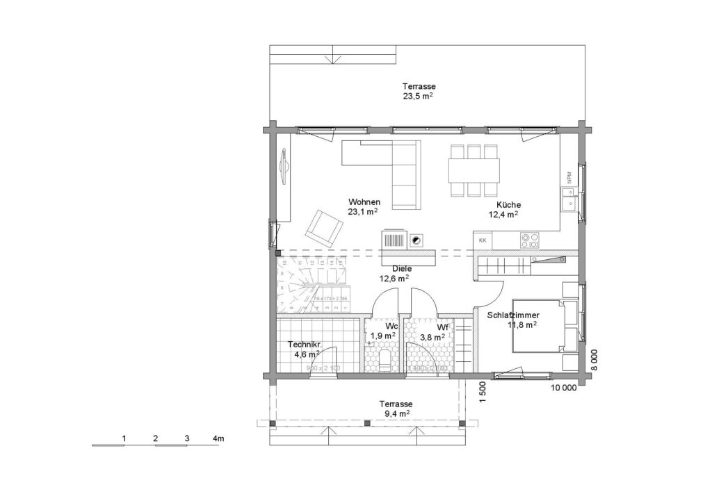
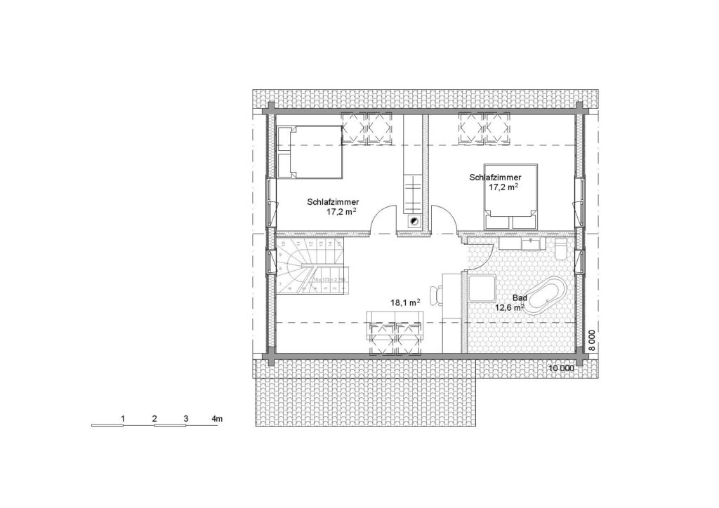
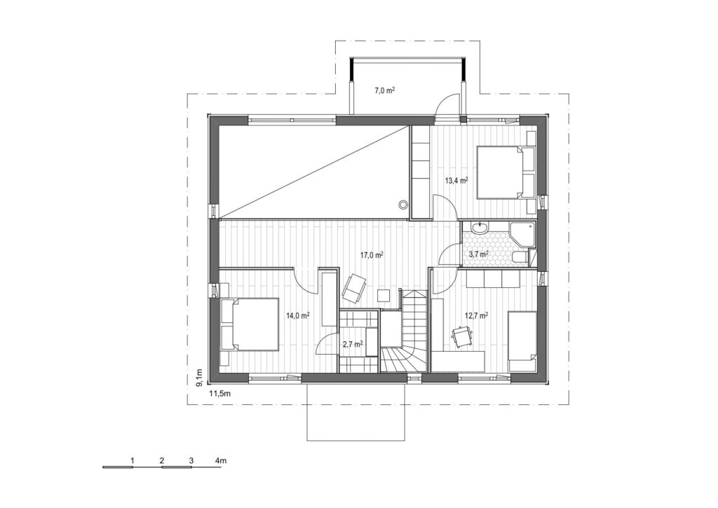
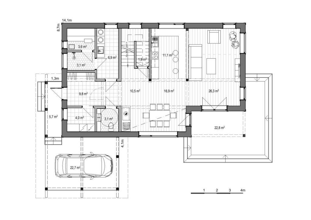
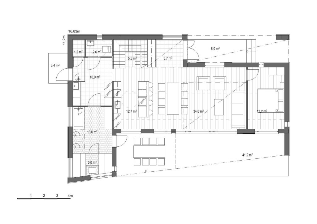
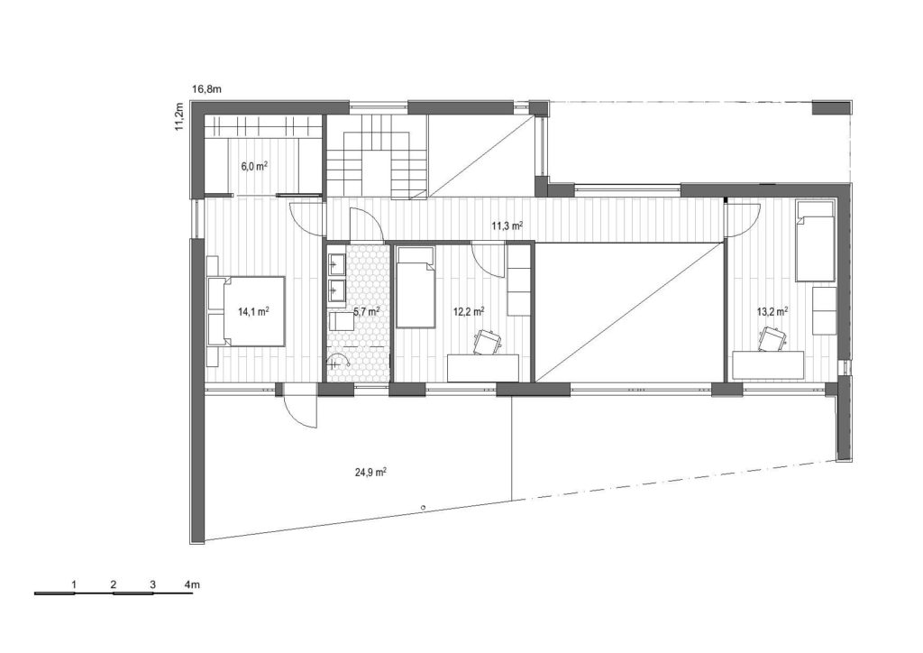
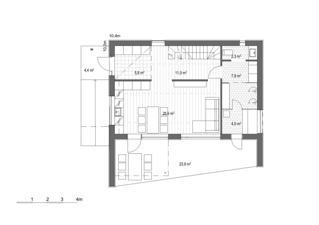
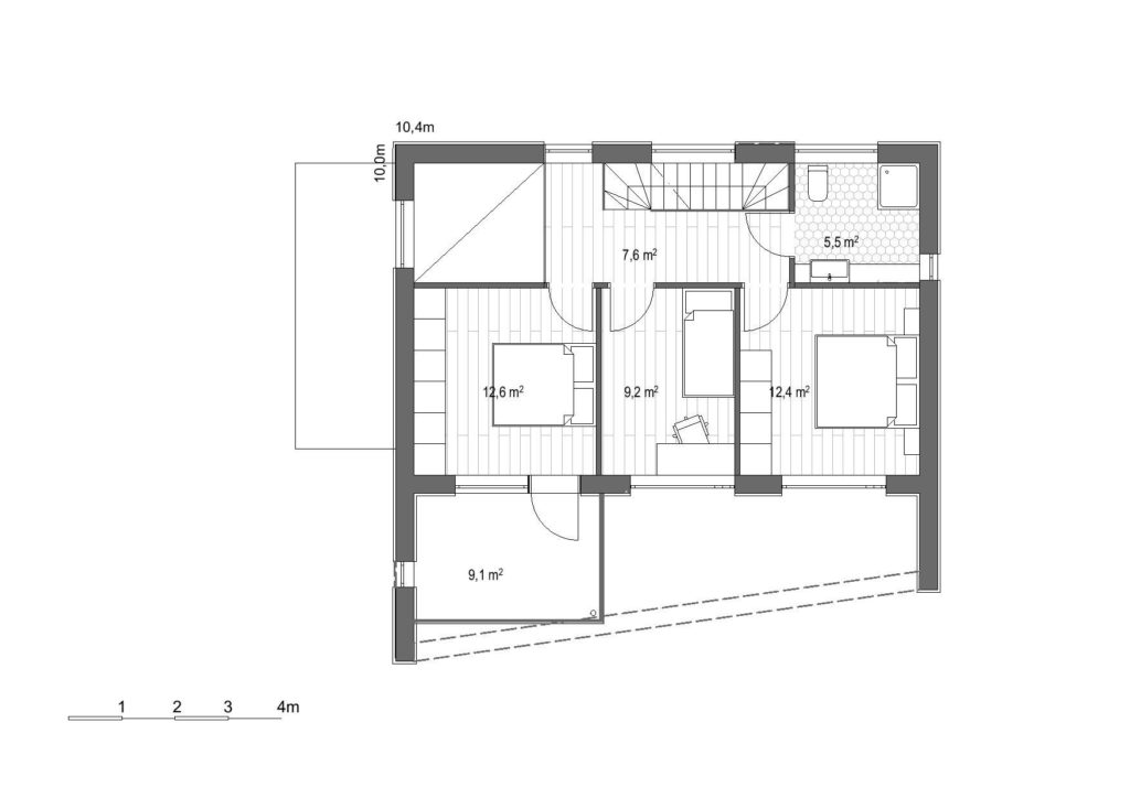
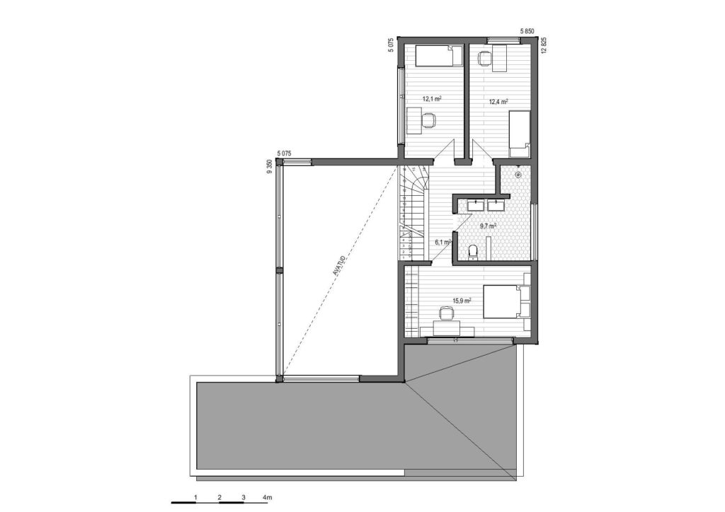
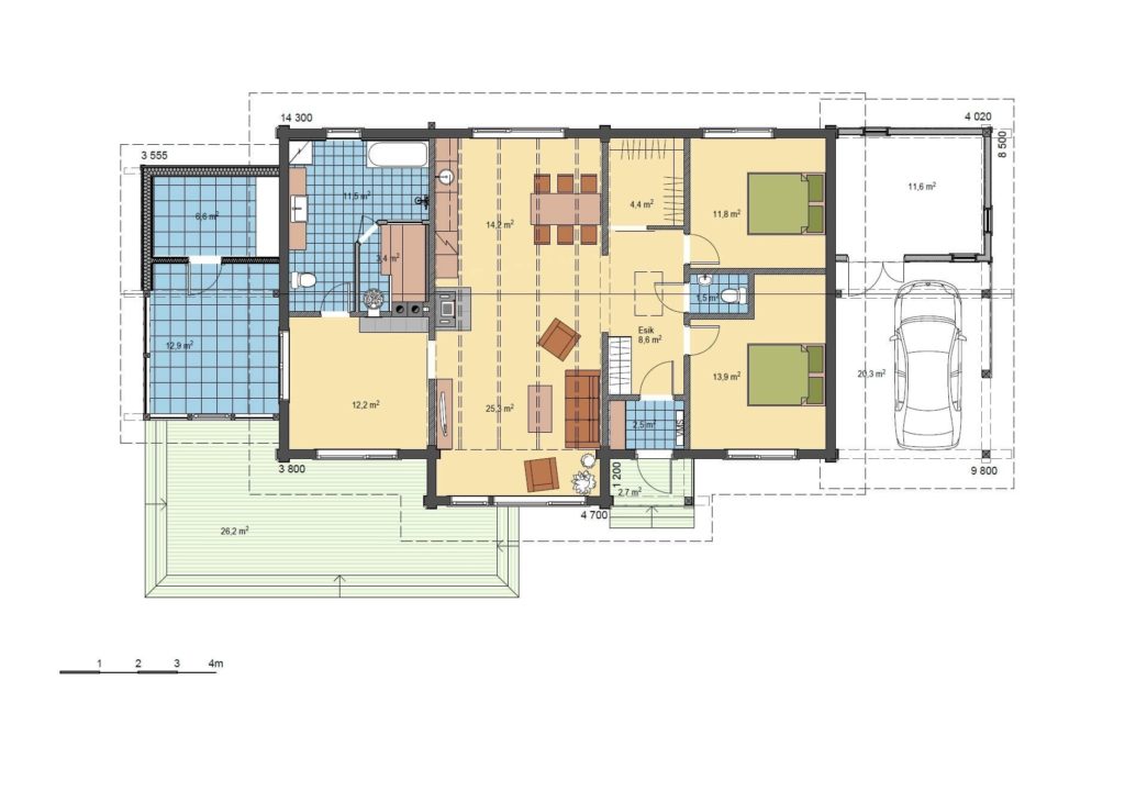
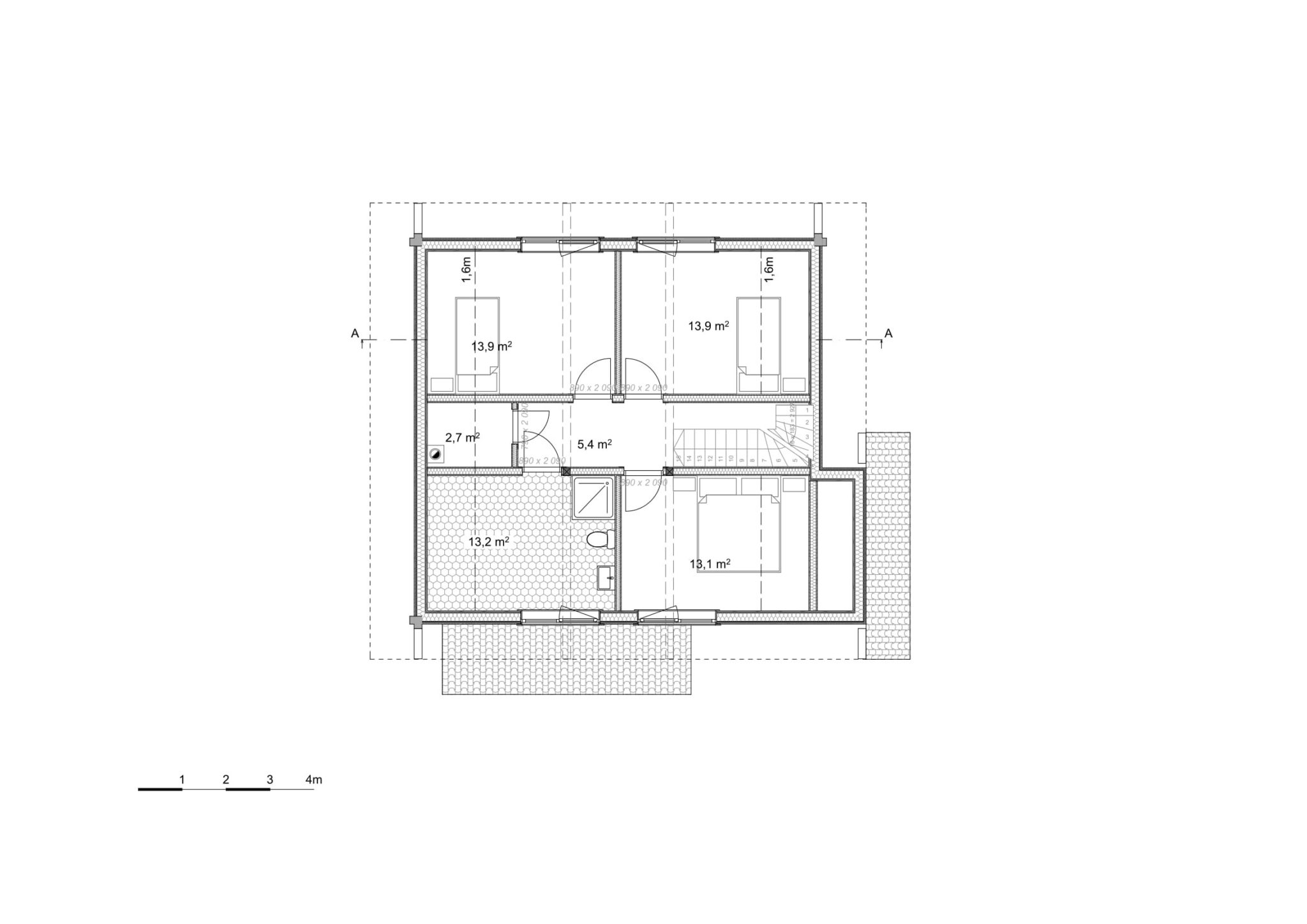
Im Erdgeschoss des Gebäudes befinden sich eine offene Küche und ein Wohnzimmer sowie eine schöne Holzterrasse. Daneben beherbergt Magnolia standardmäßig auch ein Gästezimmer, das sich aber auch als Büro eignet. Im Dachgeschoss des Hauses liegen drei Schlafzimmer und ein geräumiges Badezimmer.
Das Holzhaus Magnolia eignet sich sehr gut als Vorstadthaus oder als Landhaus.
Das Projekt kann nach eigenen Wünschen geändert werden!
Das Projekt kann entweder als verleimtes Blockhaus oder als CLT-Elementhaus gebaut werden. Jedes Projekt lässt sich individuell an die Bedürfnisse Ihrer Familie anpassen, einschließlich der Grundrisse und der Größe der Wohnfläche.
Sie sind herzlich zu einer kostenlosen Beratung bei Finnlog eingeladen!
















































































































































































































































































































































































































































































































































