Holzhaus Donar von Finnlog
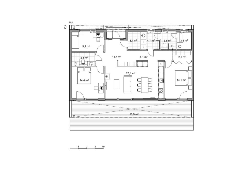
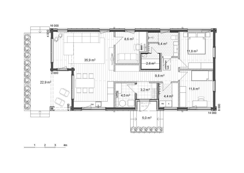
Das Holzhaus Donar ist mit 75 m² ideal für eine kleine Familie oder ein Paar, die sich das wohlige Flair eines Holzhauses wünschen. Es eignet sich aber ebenso gut auch als Ferienhaus in idyllischer Landschaft am See, als Sommerhaus in den Bergen oder als urige Jagdhütte in den tiefen Wäldern Europas.
Das offene Wohnzimmer mit Küche führt auf die große Terrasse in Richtung des Hofes. Weiterhin gibt es zwei Schlafzimmer, eine Diele, ein Badezimmer und einen Technik-Raum (Hauswirtschaftsraum HWR) bzw. Lagerraum.
Holzhäuser wie das Donar benötigen in der Regel weniger Heizenergie, den der Naturbaustoff Holz sehr gute selbstregulierende Isoliereigenschaften bei geringem Platzverbrauch. Das leistet kein moderner Beton oder Stein. Im Winter dringt kaum Wäremenergie nach draußen und auch im heißen Sommer schützt das Holz auf natürliche weiße vor der Sommerhitze.
Vorteile der Bungalow-Bauweise
Durch die Anordnung aller Räume auf nur einer Etage kann im Bungalow Donar auf Stufen und Treppen verzichtet werden. Das ist besonders für die Barrierefreiet, für gehbehinderte Menschen von Vorteil. Auch Familien mit Kleinkindern profitieren vom Leben auf nur einer Ebene im Holzhaus. Selbst vor der Hauseingangstür können bei eben Grundstücken die Stufen entfallen. Der Holzaus Bungalow verbindet so direkt Innen- und Außenanlage.
Die Anordnung der Räume nebeneinander erlaubt es außerdem, den Grundriss ganz individuell zu gestalten, da keine tragenden Wände oder die Statik höher liegender Geschosse berücksichtigt werden müssen. Dadurch eignet sich der Bungalow hervorragend für offene Raumkonzepte.
Das Hausprojekt Donar kann nach Ihren eigenen Wünschen geändert werden!
Das Projekt kann entweder als verleimtes Blockhaus oder als CLT-Elementhaus gebaut werden. Jedes Projekt lässt sich individuell an die Bedürfnisse Ihrer Familie anpassen, einschließlich der Grundrisse und der Größe der Wohnfläche.
Sie sind herzlich zu einer kostenlosen Beratung bei Finnlog eingeladen!

























































































































































































































































































































































































































































































































































































































