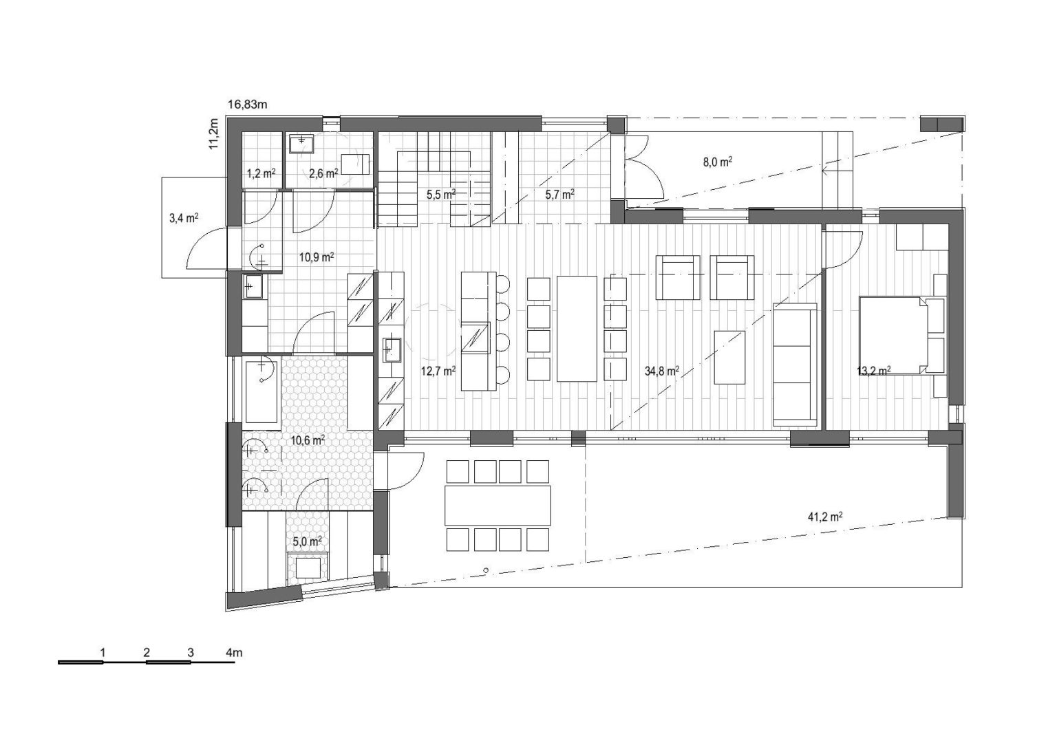
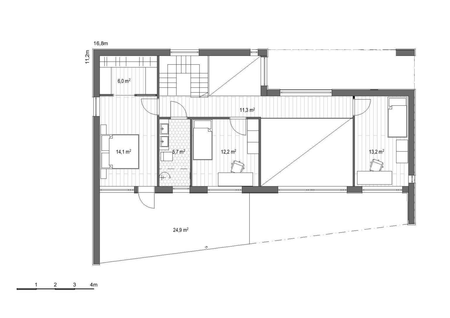
Es handelt sich um ein klar begrenztes, kubistisches Haus aus Brettsperrholz. Das Wohnzimmer, das Esszimmer und die Küche bilden einen einheitlichen, lichtvollen Wohnraum. Die Sauna befindet sich neben den hauptsächlichen Räumlichkeiten, sodass sie die geräumige Terrasse begrenzt und gleichzeitig schützt. Die lichtvolle Treppe führt zum oberen Geschoss, wo man aus der Galerie, die sich über die hohen Zimmer befindet, durch die Türen zu den Schlafzimmern sowie zur Garderobe und zu den Badezimmern gelangt. Der Mörtel der Außenverkleidung sorgt dank der weißen Farbe der Terrassenwand für einen effektvollen Kontrast.
Das Projekt kann entweder als verleimtes Blockhaus oder als CLT-Elementhaus gebaut werden. Jedes Projekt lässt sich individuell an die Bedürfnisse Ihrer Familie anpassen, einschließlich der Grundrisse und der Größe der Wohnfläche.
Sie sind herzlich zu einer kostenlosen Beratung bei Finnlog eingeladen!































































































































































































































































































































































































































































































































































