Aibell ist mit Belenus verwandt – obwohl moderne Häuser in ihrer Raumaufteilung ähnlich sind, trennt das Aibell-Modell Wohnzimmer und Küche stärker voneinander. Im Garten ist außerdem eine überdachte Terrasse geplant, auf der man an einem regnerischen Tag gemütlich eine Tasse Tee genießen kann.
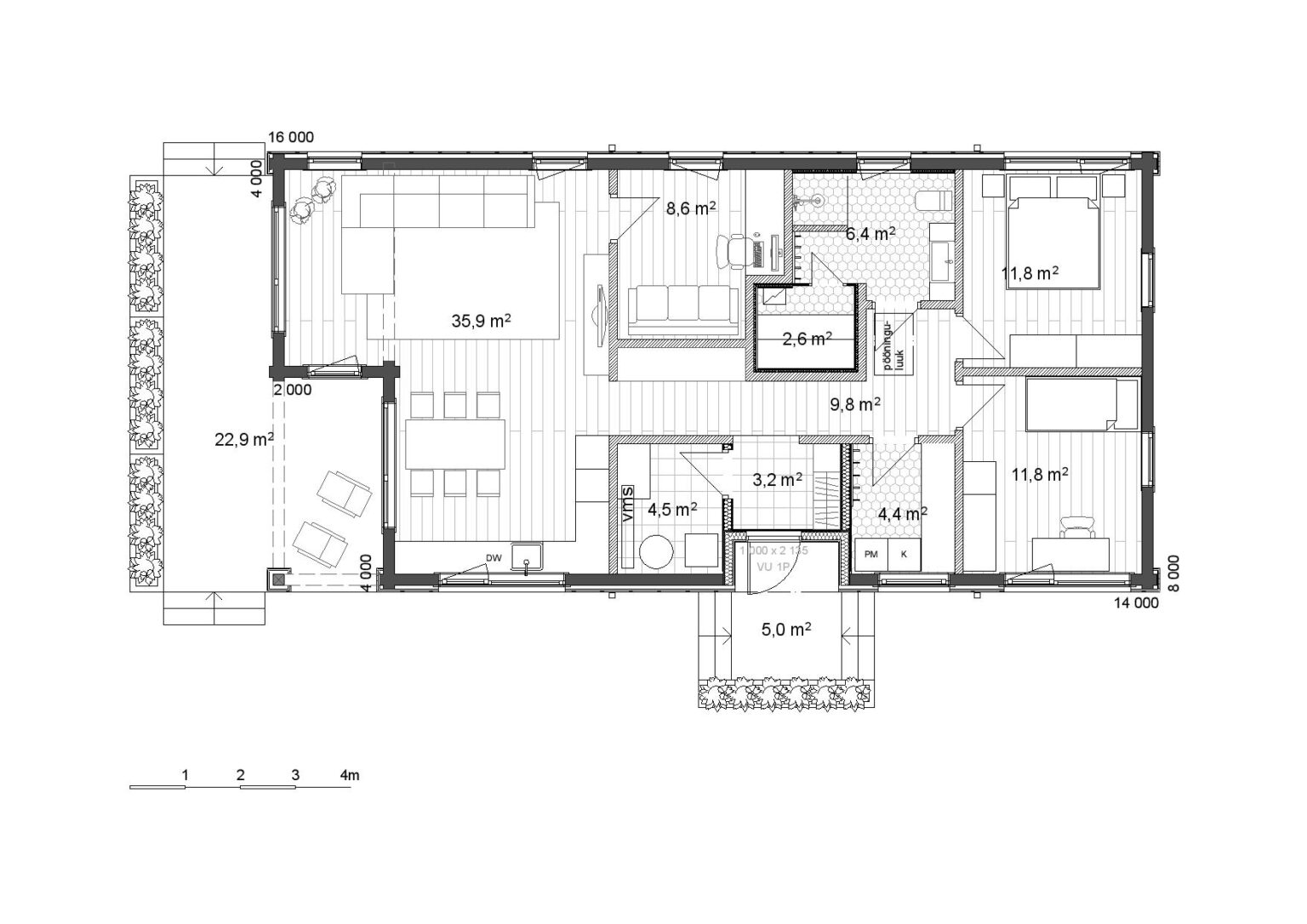
Das Haus verfügt über drei Schlafzimmer, einen Hauswirtschaftsraum mit kleiner Sauna, einen Technikraum, einen Hausmeisterraum sowie einen separaten Wohn- und Küchenbereich. Sowohl im Flur als auch im Dielengang sind Einbauschränke vorgesehen. Die großzügigen Fenster des Gebäudes öffnen sich zur Terrasse, während die Technikräume eher zur Straße hin ausgerichtet sind, wodurch die Wohnräume auf der Hofseite des Grundstücks Privatsphäre genießen.
Die Fassade ist mit vertikalen Brettern verkleidet, die der klassischen Blockbauweise eine moderne Note verleihen. Wir empfehlen ein Blechdach mit klassischem Profil.
Das Projekt lässt sich als Blockhaus oder als CLT-Haus realisieren. Jedes Projekt wird individuell an die Bedürfnisse Ihrer Familie angepasst, inklusive Grundrissen und Wohnfläche.















